In the fast-paced world of commercial real estate, time is money… and presentation is everything. Whether you’re preparing a space for leasing, pitching to investors, or marketing a property online, having accurate, professional-looking floor plans can make or break a deal. That’s where CubiCasa comes in.
At Slate Interiors, we’re always looking for tools that empower brokers, streamline processes, and elevate the client experience. If you’re a commercial real estate professional who still relies on old PDFs, rough sketches, or waiting days for a CAD layout, it’s time to upgrade your toolkit.
WHAT IS CUBICASA?
CubiCasa is a mobile app that allows you to scan a commercial or residential space using just your smartphone. Within 24 hours, you receive a clean, professional floor plan, complete with measurements, square footage, and customizable branding options.
No laser measurements, no special hardware, no floor-plan drawing skills required to capture a building’s measurements and layouts as-is. And once captured, you can hand it over to a professional for space planning and design.
WHY BROKERS SHOULD BE USING CUBICASA
1. Speed to Market
With CubiCasa, you can walk through a property and scan it with your smart phone camera in 5–10 minutes. The floor plan is generated and delivered within a day, helping you list properties faster by not having to engage a third party.
2. Better Listings=More Engagement
Floor plans are one of the most requested features by tenants and buyers viewing commercial listings online. A clean layout helps them visualize the space, plan layouts, and make decisions faster. From a design standpoint, we love how polished and professional they look without clunky graphics.
3. Cost-Effective and Scalable
In most cases, a 2D floor plan is free and can be turned around in 24 hours. Since we know, the first thing architects and designers ask for for fitplans, you can get the dwg drawing for an additional $35. This allows your design professionals to start space planning faster.
At Slate Interiors, we work closely with commercial real estate brokers who need to present properties quickly and professionally. Accurate floor plans are often a missing piece- one that can make a significant difference in how a space is perceived.
While we’re not affiliated with CubiCasa, we’ve found it to be a reliable and user-friendly tool for generating high-quality floor plans without the need for expensive equipment or long turnaround times. It’s especially helpful for brokers looking to streamline their marketing process or offer added value to clients.
When paired with thoughtful space planning, layouts, and renderings – something we specialize in at Slate Interiors- a clear floor plan helps prospective tenants and buyers visualize the full potential of a space. For many of our clients, CubiCasa has become a practical part of that workflow to help stakeholders quickly envision the potential of a property.
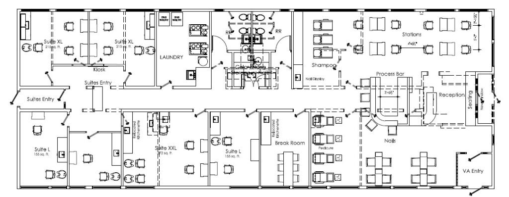
Here is an example project of a commercial property in Rocky River, Ohio. Slate scanned the space from an iPhone using CubiCasa, and were able to have final design and renderings within 1 week.





You can learn more at www.cubi.casa or download the app directly from your phone’s app store. For professional guidance in turning those floor plans into beautifully designed interiors that can be envisioned in a rendering- or to connect a new tenant with interior design services- reach out to the team at Slate Interiors. We’re here to help you achieve more impactful showings and quicker closings.
Cleveland Ohio Commercial Interior Design Studio
© SLATE Interiors Studio | DESIGN BY HEY HELLO STUDIO
3120 Wooster Road
Rocky River, OH 44116
Ready to bring in an
interior design pro?
Let’s chat >
we’ll help you plan the
perfect time and approach
for your project.